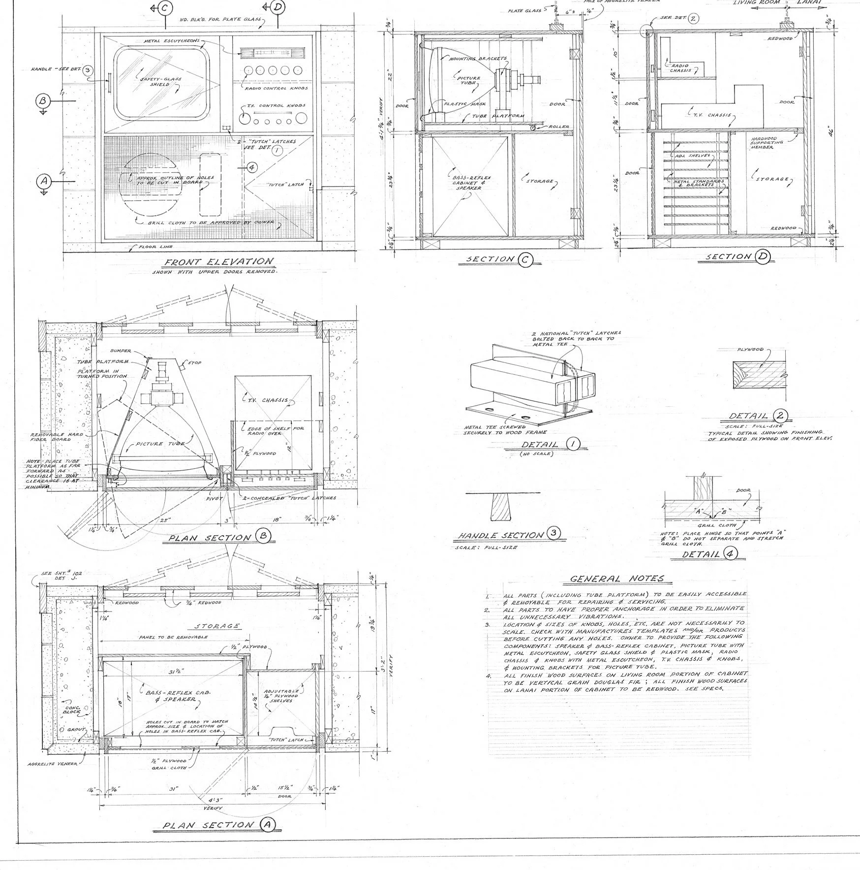
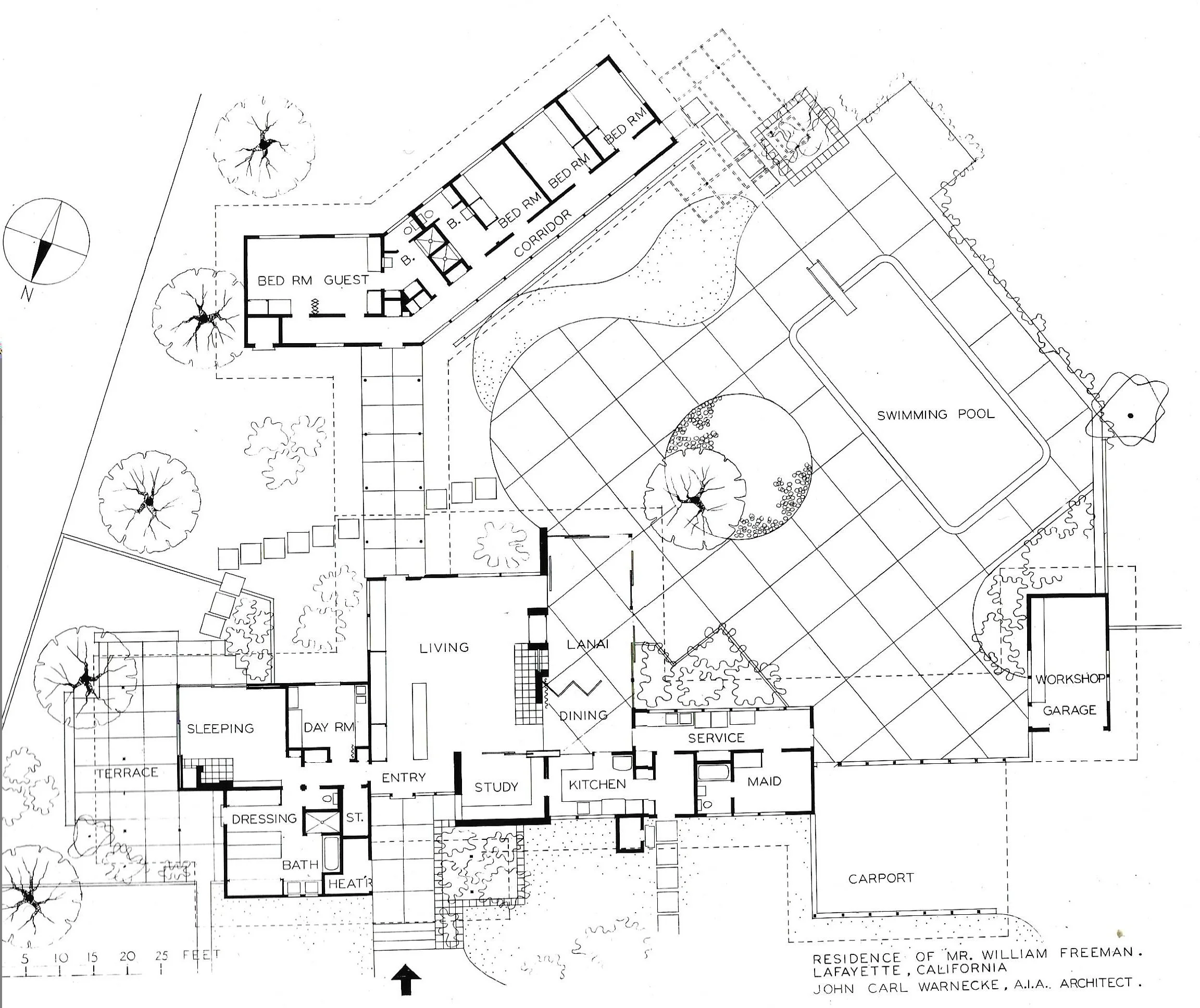
Project: Residence of Mr. William Freeman
Architect: John Carl Warnecke A.I.A.
Photographer: Ernest Braun
Date Completed: 1953
Cost $87,591.24

This mid-century-modern residential home was one of John Carl Warnecke’s early projects. The house was commissioned by William Freeman and his wife to provide a home for the couple and their 5 sons.

In 2019 the current owners embarked on a multi-stage renovation project with the help of Swatt|Miers architects. The goal of the project was to rejuvenate the space while preserving the original charm and character. Phase 1 and 2 of the renovation was completed in January of 2021.

“Located in a valley in the California Hills, the site was part of an old orchard of walnut trees, and these old and beautiful trees naturally became an important consideration in the design stage.”

“With the family living area as the center, it includes an independent sleeping and living area for the parents, a study, and kitchen with adjacent room for a maid. The boy’s living and sleeping area are removed from the family living area in a separate wing. Also included in the design are a covered outdoor area, a carport garage, and a swimming pool.”

Contemporary photos are provided by the homeowner.
To see more before and after photos as well as the historic building plans you can visit the project website linked in our bio.

Previous
Previous

Residency of Lawrence Livingston Jr.

Next
Next

Frank C. Havens School